Īpašnieks pārdod mājīgu A+ energoefektivitātes frēzbaļķu ģimenes māju, Dzidriņās – tikai 7 km no... 268 000 EUR
Filtrs
Visas kategorijas
Izvēlieties kategoriju
3 sludinājumu - skatīt visus sludinājumus
Meklēt visās valstīs
Atrašanās vieta
Meklēt visās valstīs
  • Latvija
  • Igaunija
Latvija
Meklēt pēc valsts
Meklēt pēc valsts
  • Rīga
  • Jūrmala
  • Rīgas rajons
  • Aizkraukle un novads
  • Alūksne un novads
  • Balvi un novads
  • Bauska un novads
  • Valka un novads
  • Valmiera un novads
  • Varakļāni un novads
  • Ventspils un novads
  • Grobiņa un novads
  • Gulbene un novads
  • Daugavpils un novads
  • Dobele un novads
  • Jēkabpils un novads
  • Jelgava un novads
  • Krāslava un novads
  • Kuldīga un novads
  • Liepāja
  • Līvāni un novads
  • Limbaži un novads
  • Ludza un novads
  • Madona un novads
  • Ogre un novads
  • Preiļi un novads
  • Rēzekne un novads
  • Saldus un novads
  • Smiltene un novads
  • Talsi un novads
  • Tukums un novads
  • Cēsis un novads
  • Ārpus Latvijas
  • Cits

Īpašnieks pārdod mājīgu A+ energoefektivitātes frēzbaļķu ģimenes māju, Dzidriņās – tikai 7 km no...

Nr.140971
Izveidots: 20 februāris
Adrese: Nākotnes iela 12, Cits, Latvija, Rādīt Kartē kartē
url: https://www.ss.com/msg/lv/real-estate/homes-summer-residences/riga-region/stopinu-nov/dzidrinas/UnoLFUpjRV4=.html?1771588675 
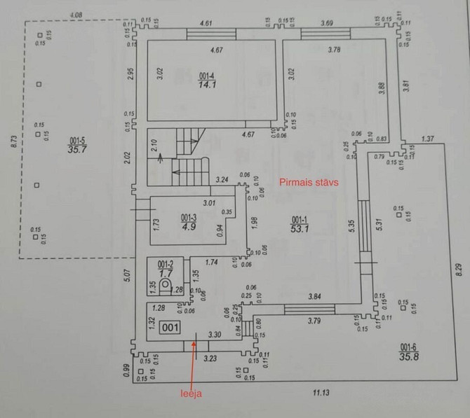
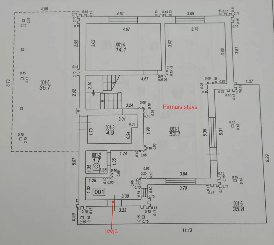
Platība: 206 m2
Stāvu skaits:
Zemes platība: 1291 m2
Istabu skaits:
Kadastra numurs: 80960040637 
Ērtības: Karstais ūdens, Dīķis, Boileris, Garāža, Šķūnis 
Īpašnieks pārdod mājīgu A+ energoefektivitātes frēzbaļķu ģimenes māju, Dzidriņās – tikai 7 km no Rīgas.
Tikko veikts nekustamā īpašuma vērtējums (pieems visās bankās), īpašuma cena atbilst vērtējumam.
Māja, nodota ekspluatācijā 2021. gadā, apvieno dabas tuvumu, ekonomisku uzturēšanu un mūsdienīgu komfortu. Tā būs lieliski piemērota ģimenēm, kurām svarīgs mājīgums un kvalitatīva dzīves vide.
Galvenie fakti par māju.
Kopējā platība: 205, 9 m² (dzīvojamā platība – 136, 8 m²).
Zemes platība: 1291 m² – pietiekami plašs pagalms atpūtai un aktivitātēm.
Frēzbaļķu palīgēka (Šķūnis) 14.5m2 (2 atsevišķas telpas)
Energoefektivitāte:
-māja siltināta ar 250 mm biezu ekovati, padarot to siltu un ekonomisku. Apkurei gadā nepieciešamas tikai 2 granulu paletes. .Apkure 3 gadu garumā nodrošināta.
-Jumts: betona dakstiņi, uzstādītas sniega barjeras.
Komunikācijas un tehnoloģijas:
-Starlink Internets.
-Elektrotīkls: pieslēgums centrālajai sistēmai.
-Ūdens: savs dziļurbums (spice).
-Kanalizācija: bioloģiskā attīrīšana.
-Apkure: granulu katls ar siltajām grīdām un radiatoriem visā mājā – mājīgums un ekonomija garantēta.
-Vārti: Automātika.
Ērtības un infrastruktūra:
-Tikai 7 km līdz Rīgas centram – ideāla atrašanās vieta.
-Blakus atrodas Ulbrokas vidusskola, kur bērnus uz skolu un atpakaļ ved pašvaldības autobuss.
-Netālu vairāki bērnudārzi, baseins, medicīnas iestādes un lielveikali.
-Sabiedriskā transporta pietura (autobuss Nr. 51) ir dažu minūšu pastaigas attālumā.
Priekšrocības, kas izceļ šo māju:
-Šī māja ir ne tikai ļoti energoefektīva, bet arī uzbūvēta, domājot par ilgtspējību un komfortu.
-Plašs zemes gabals ļaus baudīt mierpilnus brīžus ģimenes lokā vai rīkot draudzīgas pasēdēšanas svaigā gaisā.
-Privātumu nodrošina iestādītas pieaugušas 3m garas tūjas, kuras var izaugt līdz 6m.
Lūgums mākleriem nezvanīt.
Maiņas neinteresē.
-
-
Продается семейный дом из оцилиндрованного бруса класса энергоэффективности А+ в поселке Дзидрини, всего в 7 км от центра Риги.
Только что проведена оценка недвижимости (принимается всеми банками), цена объекта соответствует оценке.
Дом, введенный в эксплуатацию в 2021 году, идеально подходит для семьи, предлагая современный комфорт и экономичное содержание.
Характеристика дома:
-Общая площадь: 205, 9 м² (жилая площадь – 136, 8 м²).
-Участок: 1291 м².
-Утепление: экологическая вата толщиной 250 мм.
-Кровля: бетонная черепица, установлены снегозадержатели.
-Экономичность: дом очень теплый, отопление в течение года требует всего 2 паллеты гранул. .Отопление обеспечено на протяжении 3 лет.
-Вспомогательное здание из фрезерованных брёвен (Сарай) 14, 5 м² (2 отдельные помещения).
Коммуникации:
-Starlink интернет.
-Электроснабжение: подключение к центральной электросети.
-Водоснабжение: местный источник (скважина).
-Канализация: биологическая очистка.
-Отопление: гранульный котел, теплые полы и радиаторы.
-Ворота: Автоматика.
Инфраструктура:
-Удобное расположение рядом с Ригой.
-Вблизи Улброкская средняя школа (школьный автобус обеспечивает подвоз детей), несколько детских садов, бассейн, медицинские учреждения и крупные супермаркеты.
-В пешей доступности остановка общественного транспорта, где курсирует 51 автобус.
-Приватность обеспечивают посаженные взрослые туи высотой 3 метра, которые могут вырасти до 6 метров.
Идеальный выбор для комфортной и экономичной жизни вблизи столицы.
Просьба агентам не звонить.
Обмен не интересует.
Nr.140971
Izveidots: 20 februāris
Edgars
Bija tiešsaistē 24 februāris 16:02
Reģistrējieties vai autorizējieties, lai komentētu.
268 000 EUR
Rakstīt Kontakti
Edgars
Bija tiešsaistē 24 februāris 16:02
Līdzīgi sludinājumi