Birojs Pārdaugavā, pretī "Gaismas pils" bibliotēkai. Birojs sastāv no vienas lielas telpas 425 EUR
Filtrs
Visas kategorijas
Izvēlieties kategoriju
2 sludinājumu - skatīt visus sludinājumus
Meklēt visās valstīs
Atrašanās vieta
Meklēt visās valstīs
  • Latvija
  • Igaunija
Liepāja
Meklēt pēc reģiona
Meklēt pēc reģiona
  • Aizpute
  • Grobiņa
  • Durbe
  • Liepāja
  • Pāvilosta
  • Priekule
  • Vērgales pagasts
  • Gaviezes pag.
  • Grobiņas pagasts
  • Kalvenes pagasts
  • Kalētu pagasts
  • Nīcas pag.
  • Priekules pag.
  • Rucavas pag.
  • Tadaiķu pag.

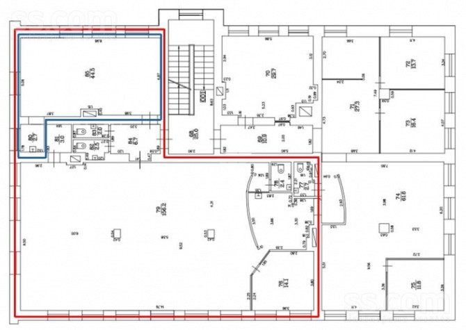
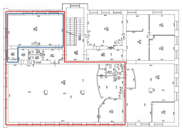
Birojs Pārdaugavā, pretī "Gaismas pils" bibliotēkai. Birojs sastāv no vienas lielas telpas

Nr.145629
Izveidots: Šodien
Adrese: Valguma iela, Rīga, Latvija
url: https://www.rentinriga.lv/lv/birojs/noma/67225 
Platība: 53 m2
Birojs Pārdaugavā, pretī "Gaismas pils" bibliotēkai. Birojs sastāv no vienas lielas telpas (44 kvm), virtuvītes, priekštelpas un WC. Atsevišķa ieeja no kāpņu telpas. Iespējama telpu pārbūve atbilstoši nomnieka vajadzībām. Ēka renovēta, tai ir augsta energoefektivitāte. Zemas apkures izmaksas, 2026.gada februārī bija zem 2 eur/kvm. Dubultās logu stikla paketes. Gaisa kondicionieris. Pie ēkas ērta autostāvvieta - nomas maksā iekļauta 1 vieta, papildus vietas par 40 eur/mēn. Perfekta ēkas lokācija, ātri sasniedzama jebkura pilsētas daļa. Apsaimniekošanas maksa 1 eur/kvm.
Nr.145629
Izveidots: Šodien
Reģistrējieties vai autorizējieties, lai komentētu.
425 EUR
Rakstīt Kontakti