Izīrē noliktavas/tirdzniecības telpas Brasas tilta rajonā. Piedāvājumā telpas 1. stāvā ar 836 EUR
Filtrs
Meklēt visās valstīs
Atrašanās vieta
Meklēt visās valstīs
  • Latvija
  • Igaunija
Latvija
Meklēt pēc valsts
Meklēt pēc valsts
  • Rīga
  • Jūrmala
  • Rīgas rajons
  • Aizkraukle un Aizkraukles novads
  • Alūksne un Alūksnes novads
  • Balvi un Balvu novads
  • Bauska un Bauskas novads
  • Valka un Valkas novads
  • Valmiera un Valmieras novads
  • Varakļāni un Varakļānu novads
  • Ventspils un Ventspils novads
  • Grobiņa un Dienvidkurzemes novads
  • Gulbene un Gulbenes novads
  • Daugavpils un Augšdaugavas novads
  • Dobele un Dobeles novads
  • Jēkabpils un Jēkabpils novads
  • Jelgava un Jelgavas novads
  • Krāslava un Krāslavas novads
  • Kuldīga un Kuldīgas novads
  • Liepāja
  • Līvāni un Līvānu novads
  • Limbaži un Limbažu novads
  • Ludza un Ludzas novads
  • Madona un Madonas novads
  • Ogre un Ogres novads
  • Preiļi un Preiļu novads
  • Rēzekne un Rēzeknes novads
  • Saldus un Saldus novads
  • Smiltene un Smiltenes novads
  • Talsi un Talsu novads
  • Tukums un Tukuma novads
  • Cēsis un Cēsu novads
  • Ārpus Latvijas
  • Cits

Izīrē noliktavas/tirdzniecības telpas Brasas tilta rajonā. Piedāvājumā telpas 1. stāvā ar

Nr.129307
Izveidots: 23 augusts
Adrese: Tēraudlietuves iela, rajons Čiekurkalns, Rīga, Latvija
url: https://www.rentinriga.lv/lv/noliktavas-telpas/noma/65165 
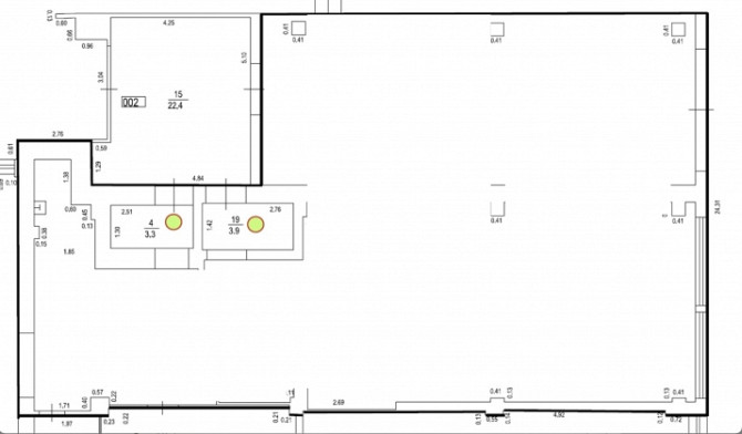
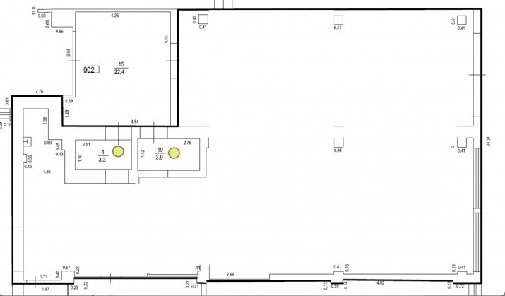
Platība: 186 m2
Izīrē noliktavas/tirdzniecības telpas Brasas tilta rajonā. Piedāvājumā telpas 1. stāvā ar ērtu piekļuvi un plašu pielietojumu noliktavai, tirdzniecībai vai ražošanai. Īpašuma apraksts: - Kopējā platība sastāv no divām noliktavas telpām un palīgtelpām - Divi WC - Telpas aprīkotas ar paceļamajiem vārtiem un ieeju no fasādes puses - Griestu augstums 4,7 m - Pilsētas apkure. - Logi nodrošina dabīgo apgaismojumu. - Pie ēkas ērta autostāvvieta. Lieliska izvēle uzņēmumiem, kam nepieciešamas funkcionālas un plašas telpas ar ērtu piekļuvi un labu atrašanās vietu.
Nr.129307
Izveidots: 23 augusts
Reģistrējieties vai autorizējieties, lai komentētu.
836 EUR
Rakstīt Kontakti