Фасадный дом, лифт, лестничная клетка после косметического ремонта, одна 650 EUR
Фильтр
Искать во всех странах
Местоположение
Искать во всех странах
  • Латвия
  • Эстония
Латвия
Искать по выбранной стране
Искать по выбранной стране
  • Рига
  • Юрмала
  • Рижский район
  • Айзкраукле и район
  • Алуксне и район
  • Балви и район
  • Бауска и район
  • Валка и район
  • Валмиера и район
  • Варакляны и район
  • Вентспилс и район
  • Гробиня и район
  • Гулбене и район
  • Даугавпилс и район
  • Добеле и район
  • Екабпилс и район
  • Елгава и район
  • Краслава и район
  • Кулдига и район
  • Лиепая
  • Ливаны и район
  • Лимбажи и район
  • Лудза и район
  • Мадона и район
  • Огре и район
  • Прейли и район
  • Резекне и район
  • Салдус и район
  • Смилтене и район
  • Талси и район
  • Тукумс и район
  • Цесис и район
  • За границей Латвии
  • Другой

Фасадный дом, лифт, лестничная клетка после косметического ремонта, одна

№142331
Создано: 23 февраля
Адрес: Lāčplēša iela 18, район Центр, Рига, Латвия
url: https://www.cityreal.lv/nekustamais-ipasums/op/426659 
Кол-во комнат:
Площадь: 36 м2
Этаж: 3 Stāvs
Этажность дома:
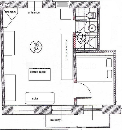
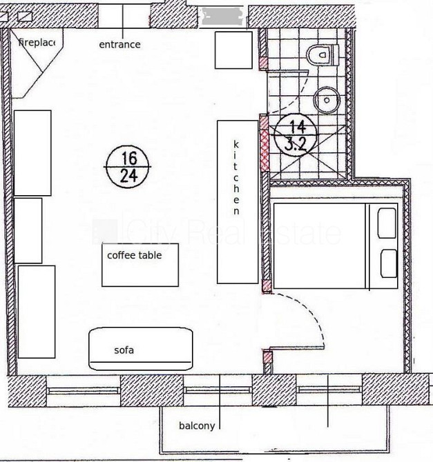
Фасадный дом, лифт, лестничная клетка после косметического ремонта, одна изолированная комната, студио, кухня объединена с гостинной, высокие потолки, центральное отопление, полная отделка , новая сантехника, совмещённый санузел, душевая кабина, встроенная кухня, диван, двуспальная кровать, кухонный стол, журнальный столик, кухонные стулья, шкаф, сдаётся со всем видимым на фотографии оборудованием, освобождена, в проекте ещё доступны квартиры, заключая договор аренды Вам нужно будет оплатить первый месяц аренды, а также внести залоговый депозит в размере месячной арендной платы., за данный объект комиссия за посреднические услуги взымается в размере половины месячной арендной платы данного объекта, о цене возможно договоритсья, CITY REAL ESTATE ID - 426659
Дополнительная информация: http://www.cityreal.lv/ru/nedvizhimost/op/426659
№142331
Создано: 23 февраля
Был онлайн 16 октября 2025 09:50
Зарегистрируйтесь или авторизуйтесь чтобы оставить комментарий.
650 EUR
Написать Контакты
Был онлайн 16 октября 2025 09:50