Доступны офисы разной площади! В трёхэтажном офисном здании на Ганību дамбис 92 EUR
Фильтр
Искать во всех странах
Местоположение
Искать во всех странах
  • Латвия
  • Эстония
Латвия
Искать по выбранной стране
Искать по выбранной стране
  • Рига
  • Юрмала
  • Рижский район
  • Айзкраукле и Айзкраукльский край
  • Алуксне и Алуксненский край
  • Балви и Балвский край
  • Бауска и Бауский край
  • Валка и Валкский край
  • Валмиера и Валмиерский край
  • Варакляны и Вараклянский край
  • Вентспилс и Вентспилсский край
  • Гробиня и Южно-Курземский край
  • Гулбене и Гулбенский край
  • Даугавпилс и Аугшдаугавский край
  • Добеле и Добельский край
  • Екабпилс и Екабпилсский край
  • Елгава и Елгавский край
  • Краслава и Краславский край
  • Кулдига и Кулдигский край
  • Лиепая
  • Ливаны и Ливанский край
  • Лимбажи и Лимбажский край
  • Лудза и Лудзенский край
  • Мадона и Мадонский край
  • Огре и Огрский край
  • Прейли и Прейльский край
  • Резекне и Резекненский край
  • Салдус и Салдусский край
  • Смилтене и Смилтенский край
  • Талси и Талсинский край
  • Тукумс и Тукумский край
  • Цесис и Цесисский край
  • За границей Латвии
  • Другой

Доступны офисы разной площади! В трёхэтажном офисном здании на Ганību дамбис

№135721
Создано: 15 ноября 2025
Адрес: Ganību dambis, район Саркандаугава, Рига, Латвия
url: https://www.rentinriga.lv/lv/birojs/noma/65988 
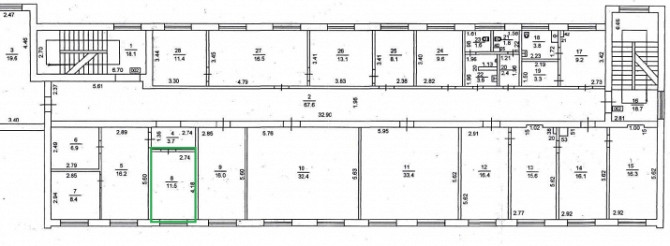
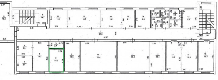
Площадь: 12 м2
Доступны офисы разной площади! В трёхэтажном офисном здании на Ганību дамбис доступны офисы в аренду. В офисном здании чистая и ухоженная территория, светлые и тёплые помещения. Удобства: + Зарядка для электромобилей + Видеонаблюдение + Чистая и ухоженная территория + Доступ 24/7 + 1 час бесплатной парковки для клиентов + Вход в здание возможен как со стороны улицы, так и со стороны двора/парковки + 1 парковочное место включено в аренду + Дополнительная парковка 27 EUR + НДС + На каждом этаже 2 санузла Рядом: - Автозаправка - Общественный транспорт - Рядом Lidl Арендная плата: 8 EUR/м В арендную плату включены расходы на обслуживание здания, общую воду, отопление и вывоз отходов. Отдельно оплачивается только электроэнергия по индивидуальным счётчикам в каждом помещении. Дополнительные услуги для арендаторов: Уборка 1.00 EUR/м
№135721
Создано: 15 ноября 2025
Зарегистрируйтесь или авторизуйтесь чтобы оставить комментарий.
92 EUR
Написать Контакты