Доступны складские/производственные помещения в отличном месте и по выгодной 1 622 EUR
Фильтр
Искать во всех странах
Местоположение
Искать во всех странах
  • Латвия
  • Эстония
Латвия
Искать по выбранной стране
Искать по выбранной стране
  • Рига
  • Юрмала
  • Рижский район
  • Айзкраукле и Айзкраукльский край
  • Алуксне и Алуксненский край
  • Балви и Балвский край
  • Бауска и Бауский край
  • Валка и Валкский край
  • Валмиера и Валмиерский край
  • Варакляны и Вараклянский край
  • Вентспилс и Вентспилсский край
  • Гробиня и Южно-Курземский край
  • Гулбене и Гулбенский край
  • Даугавпилс и Аугшдаугавский край
  • Добеле и Добельский край
  • Екабпилс и Екабпилсский край
  • Елгава и Елгавский край
  • Краслава и Краславский край
  • Кулдига и Кулдигский край
  • Лиепая
  • Ливаны и Ливанский край
  • Лимбажи и Лимбажский край
  • Лудза и Лудзенский край
  • Мадона и Мадонский край
  • Огре и Огрский край
  • Прейли и Прейльский край
  • Резекне и Резекненский край
  • Салдус и Салдусский край
  • Смилтене и Смилтенский край
  • Талси и Талсинский край
  • Тукумс и Тукумский край
  • Цесис и Цесисский край
  • За границей Латвии
  • Другой

Доступны складские/производственные помещения в отличном месте и по выгодной

№134913
Создано: 29 октября
Адрес: Ganību dambis iela, район Саркандаугава, Рига, Латвия
url: https://www.rentinriga.lv/lv/noliktavas-telpas/noma/65820 
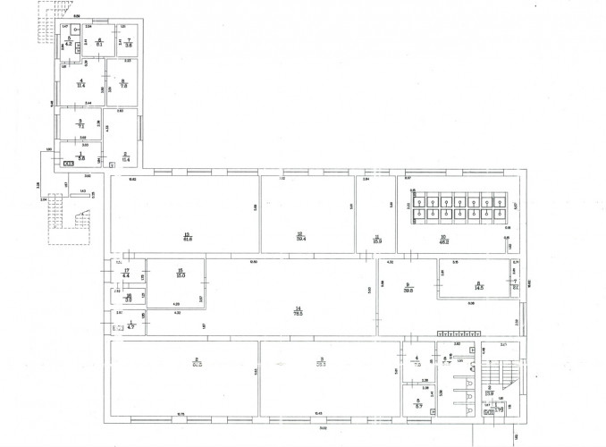
Площадь: 1088 м2
Доступны складские/производственные помещения в отличном месте и по выгодной цене. Помещения можно адаптировать под ваши нужды. Общая площадь 1088,2 кв.м. Есть электричество и вода. Отопительного котла нет, но установлены радиаторы необходимо только подключить котёл. Не стесняйтесь звонить, если у вас есть вопросы или вы хотите осмотреть помещение.
№134913
Создано: 29 октября
Зарегистрируйтесь или авторизуйтесь чтобы оставить комментарий.
1 622 EUR
Написать Контакты