Офис с собственной террасой - 120 м2. Современный бизнес-комплекс, расположенный в 3 500 EUR
Фильтр
Искать во всех странах
Местоположение
Искать во всех странах
  • Латвия
  • Эстония
Латвия
Искать по выбранной стране
Искать по выбранной стране
  • Рига
  • Юрмала
  • Рижский район
  • Айзкраукле и Айзкраукльский край
  • Алуксне и Алуксненский край
  • Балви и Балвский край
  • Бауска и Бауский край
  • Валка и Валкский край
  • Валмиера и Валмиерский край
  • Варакляны и Вараклянский край
  • Вентспилс и Вентспилсский край
  • Гробиня и Южно-Курземский край
  • Гулбене и Гулбенский край
  • Даугавпилс и Аугшдаугавский край
  • Добеле и Добельский край
  • Екабпилс и Екабпилсский край
  • Елгава и Елгавский край
  • Краслава и Краславский край
  • Кулдига и Кулдигский край
  • Лиепая
  • Ливаны и Ливанский край
  • Лимбажи и Лимбажский край
  • Лудза и Лудзенский край
  • Мадона и Мадонский край
  • Огре и Огрский край
  • Прейли и Прейльский край
  • Резекне и Резекненский край
  • Салдус и Салдусский край
  • Смилтене и Смилтенский край
  • Талси и Талсинский край
  • Тукумс и Тукумский край
  • Цесис и Цесисский край
  • За границей Латвии
  • Другой

Офис с собственной террасой - 120 м2. Современный бизнес-комплекс, расположенный в

№138611
Создано: 18 декабря 2025
Адрес: Vienības gatve 109, район Зиепниеккалнс, Рига, Латвия
url: https://starlex.lv/lv/estate/25235-commercial-vienibas-gatve-109 
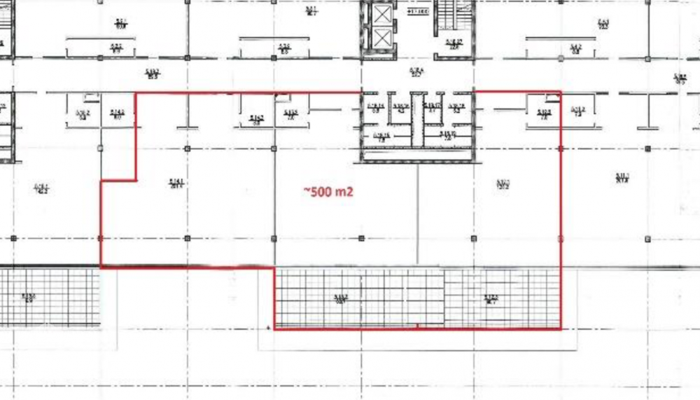
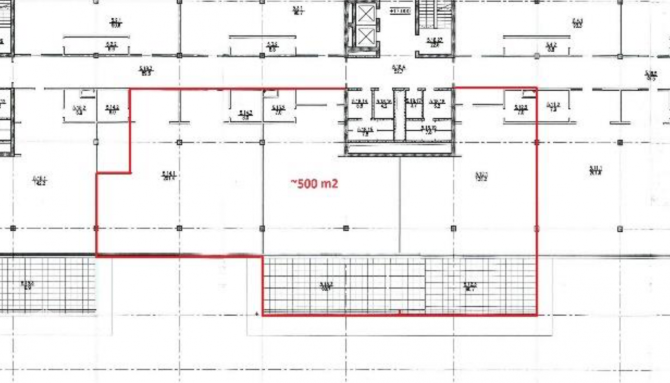
Площадь: 350 м2
Офис с собственной террасой - 120 м2. Современный бизнес-комплекс, расположенный в Пардаугаве, Виенибас гатве 109 в зеленом, благоустроенном районе. Удобное расположение общественного транспорта. Развитая инфраструктура, стратегическое расположение и чистая окружающая среда. На 1-м этаже здания располагаются кафе и различные предприятия сферы услуг, детский сад, спортивный клуб, медицинское учреждение и т. д. Вокруг много общественных зданий. В здании имеется просторный оборудованный конференц-зал площадью 150 м2 на 80 человек. На каждом этаже имеется душевая. В офисе имеется система кондиционирования, ведется видеонаблюдение в здании, круглосуточная охрана и система контроля доступа. В стоимость офиса входят 4 бесплатных парковочных места в подземном паркинге. Для клиентов краткосрочная (до 2 часов) бесплатная парковка. Дополнительные парковочные места 20 евро/мес. В офисе выполнена полная внутренняя отделка. Перепланировка и отделка помещений выполняются по вашим пожеланиям. Фотографии в качестве примера из другого офиса в этом же бизнес-центре. Площадь помещения 500 м2, с возможностью деления на нужные клиенту 300-500 м2. Широкие панорамные окна. Помещение эксклюзивно, так как имеет выход на террасу (2x60 м2), которая не входит в арендуемую площадь и предоставляется бесплатно. Арендная плата 10 евро/кв. м + коммунальные платежи + управление (2 евро/кв. м).
№138611
Создано: 18 декабря 2025
Зарегистрируйтесь или авторизуйтесь чтобы оставить комментарий.
3 500 EUR
Написать Контакты