Сдаются в аренду офисные помещения в активном центре Риги, в престижном здании в 1 500 EUR
Фильтр
Искать во всех странах
Местоположение
Искать во всех странах
  • Латвия
  • Эстония
Латвия
Искать по выбранной стране
Искать по выбранной стране
  • Рига
  • Юрмала
  • Рижский район
  • Айзкраукле и Айзкраукльский край
  • Алуксне и Алуксненский край
  • Балви и Балвский край
  • Бауска и Бауский край
  • Валка и Валкский край
  • Валмиера и Валмиерский край
  • Варакляны и Вараклянский край
  • Вентспилс и Вентспилсский край
  • Гробиня и Южно-Курземский край
  • Гулбене и Гулбенский край
  • Даугавпилс и Аугшдаугавский край
  • Добеле и Добельский край
  • Екабпилс и Екабпилсский край
  • Елгава и Елгавский край
  • Краслава и Краславский край
  • Кулдига и Кулдигский край
  • Лиепая
  • Ливаны и Ливанский край
  • Лимбажи и Лимбажский край
  • Лудза и Лудзенский край
  • Мадона и Мадонский край
  • Огре и Огрский край
  • Прейли и Прейльский край
  • Резекне и Резекненский край
  • Салдус и Салдусский край
  • Смилтене и Смилтенский край
  • Талси и Талсинский край
  • Тукумс и Тукумский край
  • Цесис и Цесисский край
  • За границей Латвии
  • Другой

Сдаются в аренду офисные помещения в активном центре Риги, в престижном здании в

№138442
Создано: Сегодня
Адрес: Krišjāņa Valdemāra 37, район Центр, Рига, Латвия
url: https://starlex.lv/lv/estate/23104-commercial-krisjana-valdemara-37 
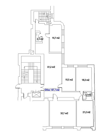
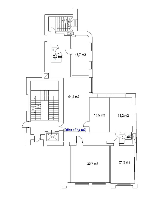
Площадь: 167 м2
Сдаются в аренду офисные помещения в активном центре Риги, в престижном здании в стиле модерн (1912 г., Эйженс Лаубе). Фасадный дом, 2 этаж, вход с фасадного дома (черный выход во двор), презентабельная лестница, солидные соседи, окна выходят как на улицу Кр.Валдемара, так и во двор дома. На 1 этаже здания расположены магазины, на 2 этаже 3 офиса, на 3 этаже апартаменты. Планировка: 4 изолированные рабочие комнаты площадью 8,6 кв.м. до 36,8 кв.м., ширина 38,4 кв.м. зал приёма/секретаря, туалет. Удобства: центральное отопление, санузел, пожарная сигнализация, охранная сигнализация, все коммуникации. Фасад здания недавно был отремонтирован. Рядом в районе улицы Мелнгалвью есть платная парковка. За электричество и воду по счетчикам придется доплачивать, а также за тепло в отопительный сезон. Плата за управление: 0,50 евро/м2. Платные парковочные места в районе стадиона Сконто стоят 50-60 евро/мес. Общая площадь: 167 м2. Арендная плата: 1500 евро/месяц (8,98 евро/м2) + коммунальные услуги + плата за управление + НДС.
№138442
Создано: Сегодня
Зарегистрируйтесь или авторизуйтесь чтобы оставить комментарий.
1 500 EUR
Написать Контакты