Современное офисное здание. Бизнес-центр Мукусала. 4 этаж. Помещения в хорошем 3 984 EUR
Фильтр
Искать во всех странах
Местоположение
Искать во всех странах
  • Латвия
  • Эстония
Латвия
Искать по выбранной стране
Искать по выбранной стране
  • Рига
  • Юрмала
  • Рижский район
  • Айзкраукле и район
  • Алуксне и район
  • Балви и район
  • Бауска и район
  • Валка и район
  • Валмиера и район
  • Варакляны и район
  • Вентспилс и район
  • Гробиня и район
  • Гулбене и район
  • Даугавпилс и район
  • Добеле и район
  • Екабпилс и район
  • Елгава и район
  • Краслава и район
  • Кулдига и район
  • Лиепая
  • Ливаны и район
  • Лимбажи и район
  • Лудза и район
  • Мадона и район
  • Огре и район
  • Прейли и район
  • Резекне и район
  • Салдус и район
  • Смилтене и район
  • Талси и район
  • Тукумс и район
  • Цесис и район
  • За границей Латвии
  • Другой

Современное офисное здание. Бизнес-центр Мукусала. 4 этаж. Помещения в хорошем

№146551
Создано: Сегодня
Адрес: Mūkusalas iela 42D, район Торнякалнс, Рига, Латвия
url: https://starlex.lv/lv/estate/23290-commercial-mukusalas-iela-42d 
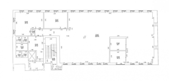
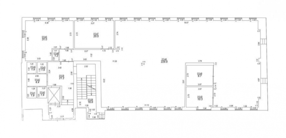
Площадь: 332 м2
Современное офисное здание. Бизнес-центр Мукусала. 4 этаж. Помещения в хорошем состоянии. Вся коммуникационная инфраструктура подключена, мощная система кондиционирования и вентиляции. Просторная парковка рядом со зданием. Круглосуточная охрана, видеонаблюдение на территории. Для удобства сотрудников и клиентов на территории расположены кафе, открытая зона отдыха и спортивный клуб. Сдается офисное помещение общей площадью 323 м2 4 комнаты. 4 этаж. Офис готов. Фотографии из аналогичного офиса в том же здании. Арендная плата 12 евро/кв. м. + плата за управление (2,5 евро/кв. м.) + коммунальные платежи.
№146551
Создано: Сегодня
Зарегистрируйтесь или авторизуйтесь чтобы оставить комментарий.
3 984 EUR
Написать Контакты