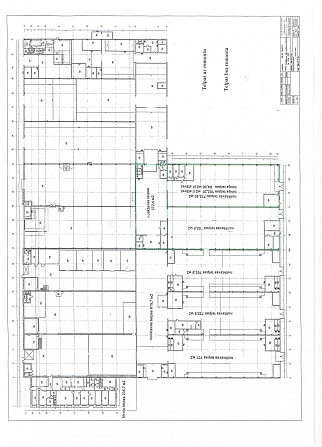
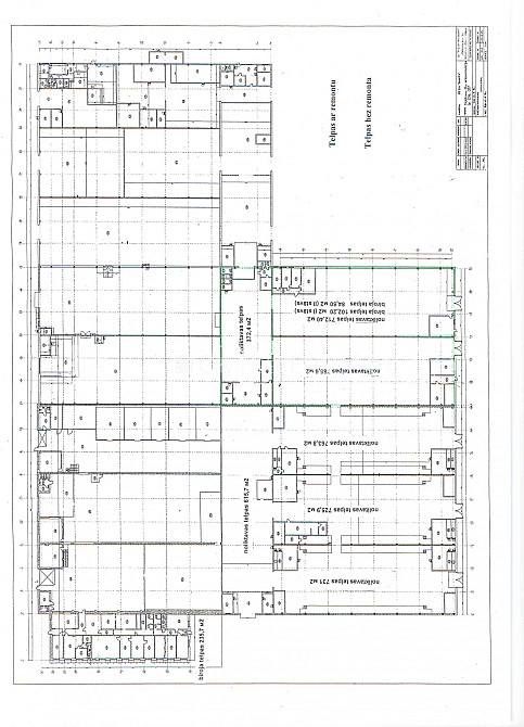
Закрытая территория, территория обнесена бетонным забором, высота въездных 1 673 EUR
Фильтр
Искать во всех странах
Местоположение
Искать во всех странах
  • Латвия
  • Эстония
Латвия
Искать по выбранной стране
Искать по выбранной стране
  • Рига
  • Юрмала
  • Рижский район
  • Айзкраукле и район
  • Алуксне и район
  • Балви и район
  • Бауска и район
  • Валка и район
  • Валмиера и район
  • Варакляны и район
  • Вентспилс и район
  • Гробиня и район
  • Гулбене и район
  • Даугавпилс и район
  • Добеле и район
  • Екабпилс и район
  • Елгава и район
  • Краслава и район
  • Кулдига и район
  • Лиепая
  • Ливаны и район
  • Лимбажи и район
  • Лудза и район
  • Мадона и район
  • Огре и район
  • Прейли и район
  • Резекне и район
  • Салдус и район
  • Смилтене и район
  • Талси и район
  • Тукумс и район
  • Цесис и район
  • За границей Латвии
  • Другой

Закрытая территория, территория обнесена бетонным забором, высота въездных

№141161
Создано: 22 февраля
Адрес: Buļļu iela 43, район Ильгюциемс, Рига, Латвия
url: https://www.cityreal.lv/nekustamais-ipasums/op/428978 
Площадь: 1334 м2
Закрытая территория, территория обнесена бетонным забором, высота въездных ворот 4 м, места для нескольких машин, объект охраняет физическая охрана, есть подъёмник, в доме подключено 3 фазовое электроснабжение, высота потолков 5 м, два входа, oбщий санузел, возможность арендовать площадь меньше, возможна аренда большей площади, на территории есть возможность аренды офисных помещений, на территории есть возможность аренды складских помещений , освобождена, в проекте ещё доступны комерческие площади 10 шт., до магазина 300 м, до остановки троллейбуса 150 м, заключая договор, оплата проиводится за первый и последний месяц аренды, CITY REAL ESTATE ID - 428978
Дополнительная информация: http://www.cityreal.lv/ru/nedvizhimost/op/428978
№141161
Создано: 22 февраля
Был онлайн 16 октября 2025 09:50
Зарегистрируйтесь или авторизуйтесь чтобы оставить комментарий.
1 673 EUR
Написать Контакты
Был онлайн 16 октября 2025 09:50