Инвестиционный проект в жилом комплексе с земельным участком, утверждённым 1 290 000 EUR
Фильтр
Искать во всех странах
Местоположение
Искать во всех странах
  • Латвия
  • Эстония
Латвия
Искать по выбранной стране
Искать по выбранной стране
  • Рига
  • Юрмала
  • Рижский район
  • Айзкраукле и Айзкраукльский край
  • Алуксне и Алуксненский край
  • Балви и Балвский край
  • Бауска и Бауский край
  • Валка и Валкский край
  • Валмиера и Валмиерский край
  • Варакляны и Вараклянский край
  • Вентспилс и Вентспилсский край
  • Гробиня и Южно-Курземский край
  • Гулбене и Гулбенский край
  • Даугавпилс и Аугшдаугавский край
  • Добеле и Добельский край
  • Екабпилс и Екабпилсский край
  • Елгава и Елгавский край
  • Краслава и Краславский край
  • Кулдига и Кулдигский край
  • Лиепая
  • Ливаны и Ливанский край
  • Лимбажи и Лимбажский край
  • Лудза и Лудзенский край
  • Мадона и Мадонский край
  • Огре и Огрский край
  • Прейли и Прейльский край
  • Резекне и Резекненский край
  • Салдус и Салдусский край
  • Смилтене и Смилтенский край
  • Талси и Талсинский край
  • Тукумс и Тукумский край
  • Цесис и Цесисский край
  • За границей Латвии
  • Другой

Инвестиционный проект в жилом комплексе с земельным участком, утверждённым

№138612
Создано: 18 декабря 2025
Адрес: Bauskas b/n, район Зиепниеккалнс, Рига, Латвия
url: https://starlex.lv/lv/estate/25214-land-bauskas-b-n 
Площадь: 7358 м2
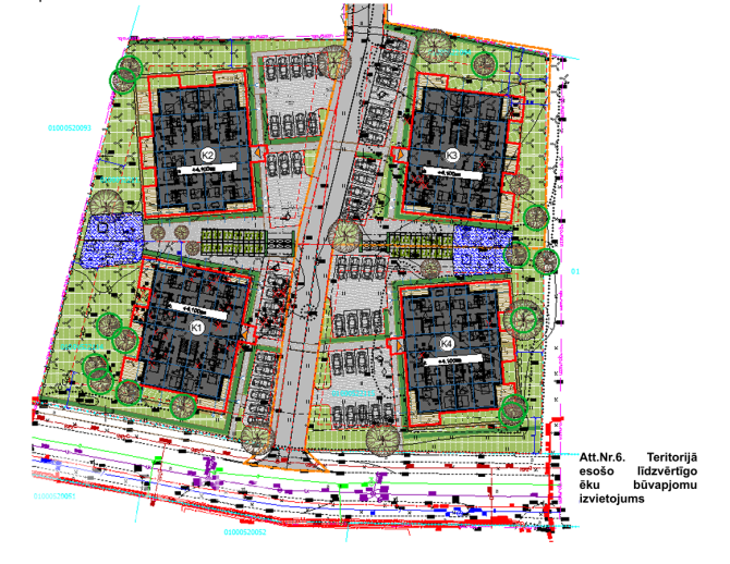
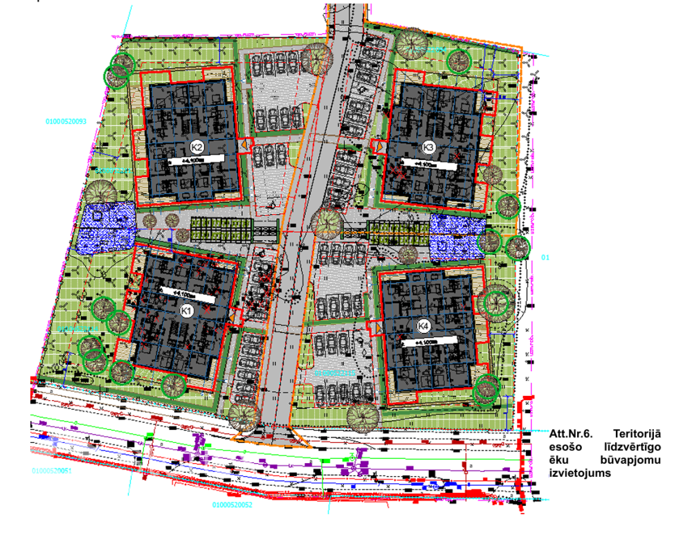
Инвестиционный проект в жилом комплексе с земельным участком, утверждённым архитектурным проектом и разрешением на строительство. Проект удачно расположен в жилом районе между улицами Баускас и Кометас, недалеко от школ, торговых центров, различных объектов инфраструктуры и магазинов. Рядом с объектом находится остановка общественного транспорта. Объект можно использовать для сдачи в аренду или продажи. Проект состоит из 4 домов и 3 этажей, по 17 квартир в каждом доме, всего 68 квартир площадью от 35 до 90 квадратных метров. Квартиры одно- и двухкомнатные, что является самым популярным сегментом рынка жилья. Квартиры на первом этаже имеют террасы, а на втором и третьем балконы. Квартиры имеют удобную и эффективную планировку. Бишумуйжа один из самых исторических районов Риги, обладающий особым очарованием. Когда-то здесь располагалась усадьба с парком, где рижская знать наслаждалась тишиной и природой. Сегодня это место возрождается, превращаясь в уютный жилой район с современными удобствами и зелёными окрестностями. Возможности для прогулок и отдыха вдоль Биекенграве, создающие спокойную и гармоничную среду для повседневной жизни. Лес и зеленые зоны прямо рядом с домом чистый воздух, пение птиц и место для утренней пробежки. На первом этаже расположены 7 малогабаритных квартир: одна студия (35 кв. м) и шесть однокомнатных (60 кв. м). На втором этаже расположены 6 трёхкомнатных квартир: две студии (35 кв. м), две однокомнатные (60 кв. м) и две двухкомнатные (80 кв. м). На третьем этаже расположены четыре двухкомнатные квартиры площадью 90 кв. м с возможностью выделения третьей спальни. Квартиры на первом этаже имеют просторные террасы, а квартиры на втором и третьем этажах балконы.
№138612
Создано: 18 декабря 2025
Зарегистрируйтесь или авторизуйтесь чтобы оставить комментарий.
1 290 000 EUR
Написать Контакты