Покрытие крыши из черепицы, фасад с деревянной отделкой, территория обнесена 79 000 EUR
Фильтр
Все категории
Выберите категорию
433 объявления - смотреть все объявления
Искать во всех странах
Местоположение
Искать во всех странах
  • Латвия
  • Эстония
Рижский район
Искать по выбранному региону
Искать по выбранному региону
  • Балдоне
  • Баложи
  • Вангажи
  • Олайне
  • Саласпилс
  • Саулкрасты
  • Cигулда
  • Адажский округ
  • Аллажская вол.
  • Бабитская вол.
  • Балдонская с. т.
  • Гаркалненский округ
  • Даугмалская вол.
  • Инчукалнский округ
  • Кекавская вол.
  • Кримулдская вол.
  • Малпилская вол.
  • Марупская вол.
  • Моренская вол.
  • Олайненская вол.
  • Ропажский округ
  • Саласпилсская с. т.
  • Салская вол.
  • Саулкрастская с. т.
  • Сейский округ
  • Сигулдская вол.
  • Стопиньский округ
  • Царникавский округ

Покрытие крыши из черепицы, фасад с деревянной отделкой, территория обнесена

№132432
Создано: 2 октября
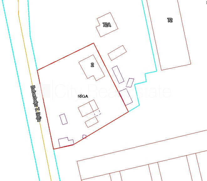
Адрес: Beberbeķu 7. līnija 2, Рижский район, Латвия
url: https://www.cityreal.lv/nekustamais-ipasums/op/425570 
Площадь: 60 м2
Количество этажей:
Площадь земли: 1053 м2
Кол-во комнат:
Покрытие крыши из черепицы, фасад с деревянной отделкой, территория обнесена забором, отопление дровами, возможна установка автономного газового отопления, возможна перепланировка, ванна, туалет, освободится по необходимости, возможна малоэтажная постройка, земля граничит с улицей, земля граничит с асфальтированной дорогой, находится рядом с лесом, на территории земли несколько строек, хозяйственные постройки, зарегестрирована в земельной книге, CITY REAL ESTATE ID - 425570
Дополнительная информация: http://www.cityreal.lv/ru/nedvizhimost/op/425570
№132432
Создано: 2 октября
Был онлайн 16 октября 09:50
Зарегистрируйтесь или авторизуйтесь чтобы оставить комментарий.
79 000 EUR
Написать Контакты
Был онлайн 16 октября 09:50